Se hai intenzione di fare un investimento sicuro, non perderti questa occasione.
L’ inizio lavori del nuovo edificio, è previsto per fine febbraio 2026 e la consegna avverrà presumibilmente entro dicembre 2027. Lo stesso ha destinazione residenziale, con appartamenti di varie dimensioni, dotati di loggiati e terrazze vivibili, ed ogni confort per permettere di far vivere ad ogni nostro cliente un’abitabilità ovattata e rilassante, il tutto immerso nel verde del più grande parco di Civitanova Marche.
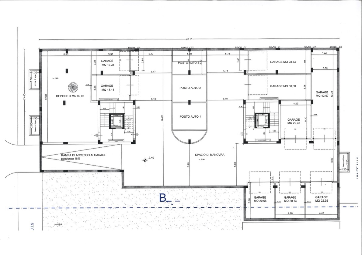
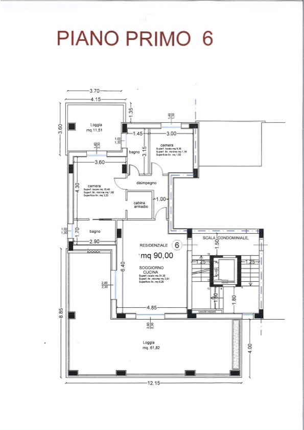
Il piano interrato è destinato a box, piano terra rialzato alla realizzazione di uffici commerciali , dei quali qualcuno con vista parco, mentre i restanti due piani superiori saranno tutti destinati a residenziale abitativo.
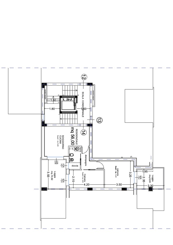
LA Civitanova 2000 Srl propone un'ampia scelta di soluzioni tra cui:- trilocali/quadrilocali bicamera/tricamera o diversa tipologia in base alle necessità richieste.
Tutte le unità residenziali saranno certificate e godranno degli accorgimenti necessari per garantire un elevato standard energetico ed acustico, di sicura classe “A ++++”.
Su ogni locale, la Civitanova 2000 srl realizzerà impianti di riscaldamento a pavimento radiante autonomi ed impianti di raffrescamento anch'essi autonomi, impianti Vmc per areazione locali con controllo umidità, che permette di avere un ambiente climatico di grande confort, vi saranno tra le tante altre, tapparelle automatizzate, antifurto volumetrico, videocitofoni a cristalli liquidi, ogni camera sarà autonoma nel riscaldamento e raffrescamento con termostati specifici e controllabili tramite app, un capitolato di ottimo livello, ed “a richiesta impianti elettrici domotici.
Chi sceglie una residenza nel Complesso Residenziale Civitanova 2000 sceglie di realizzare il sogno di poter vivere a due passi dal centro città e dal lungomare“circa 3/5 minuti a piedi”, in una casa esclusiva, elegante, ricercata e ad alto livello qualitativo.
Per rendere ancora più esclusivo l’immobile, la Civitanova 2000 Srl, installerà come da progetto nr. 2 ascensori, con fermate ai piani a partire dai box auto, che serviranno agni uno di essi solo 4 unità abitative
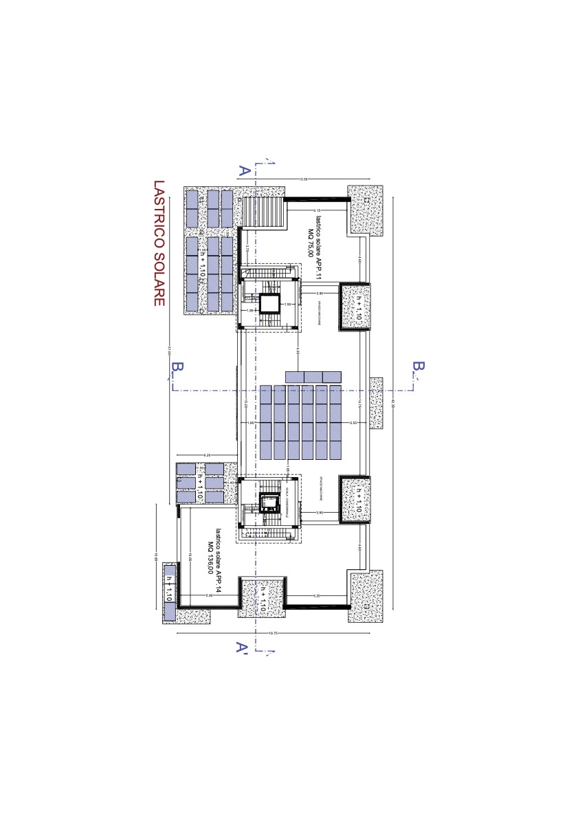
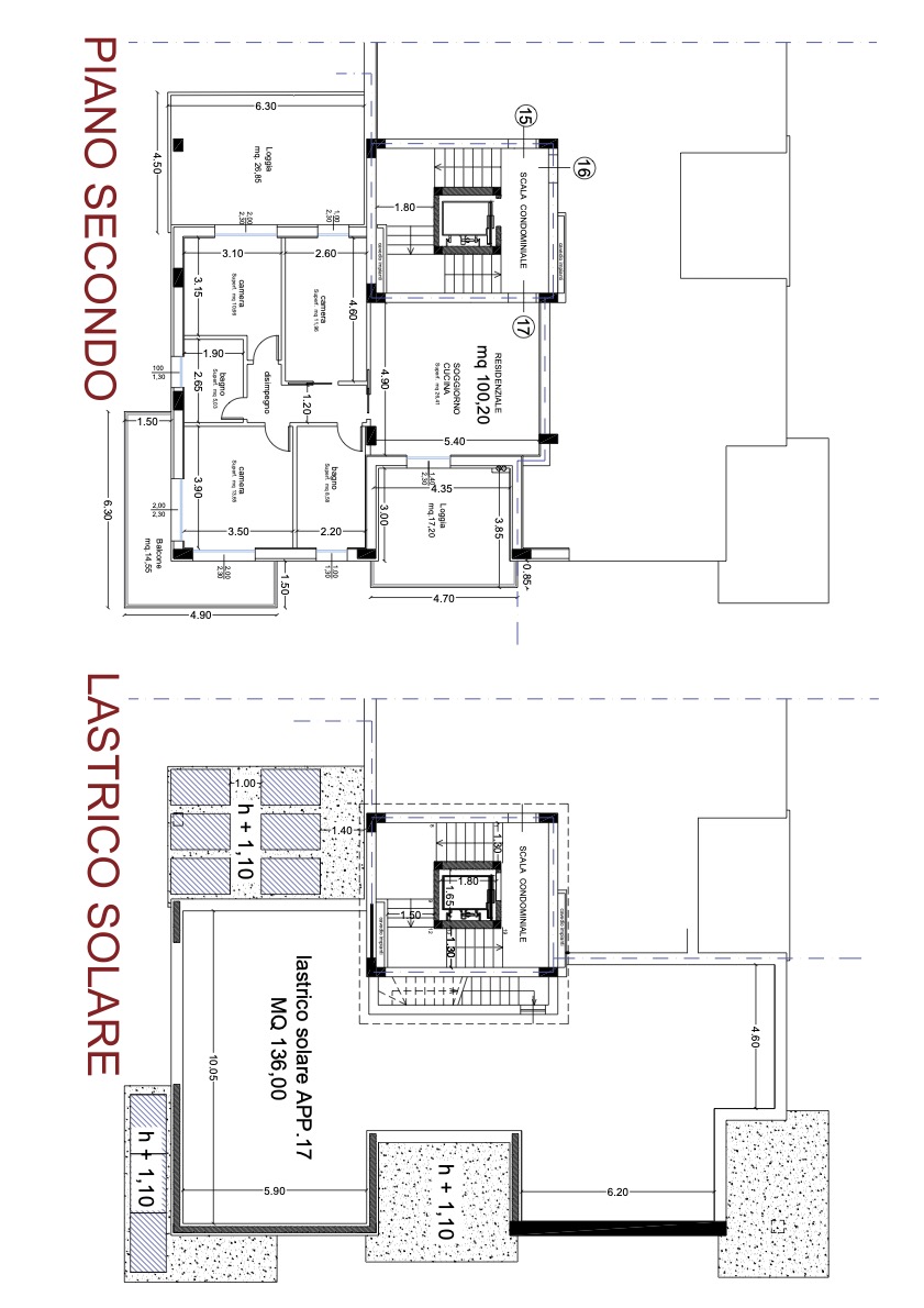
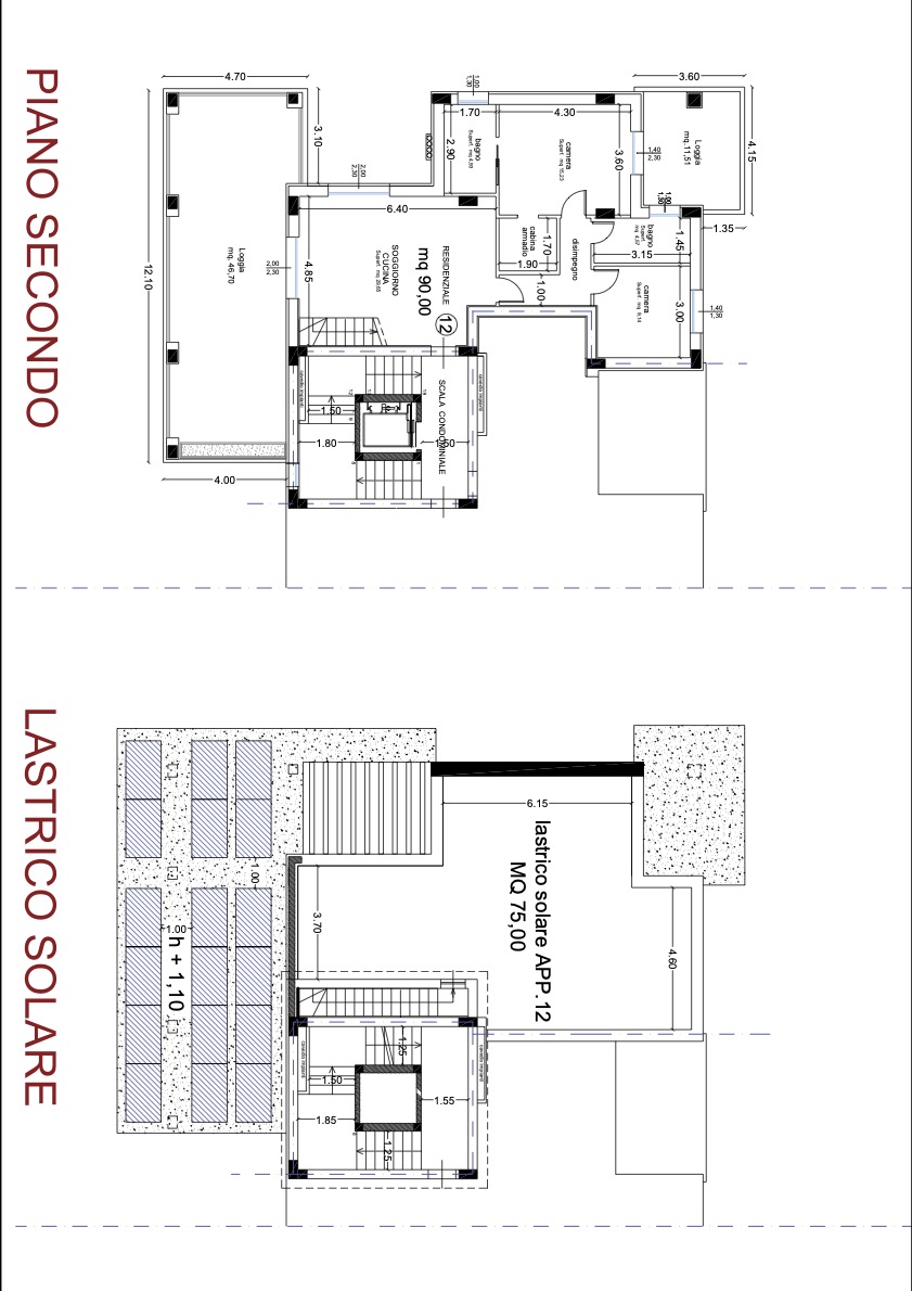
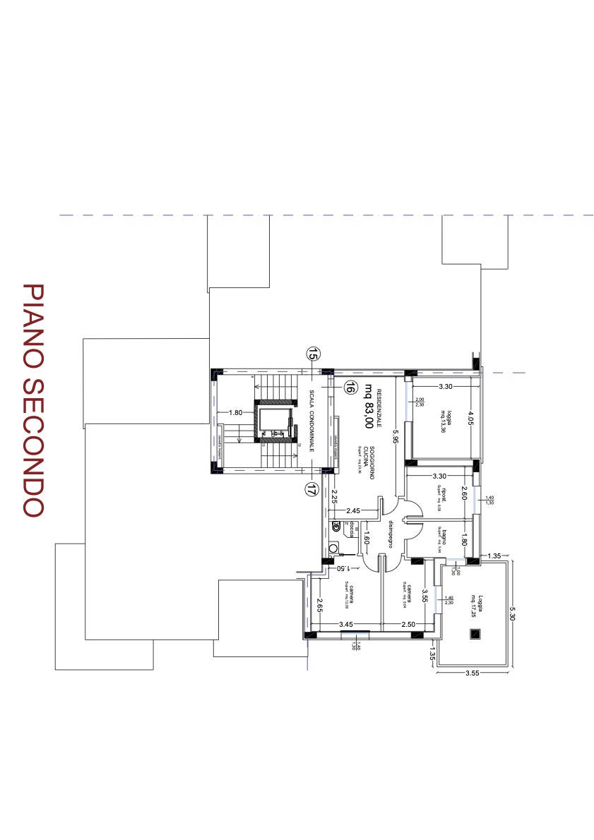
All’ultimo piano di questo edificio sono previsti 4 attici di grandi metrature con terrazze vista parco e, dal lato opposto, vista Sibillini, che nella stagione invernale, innevati, emanano grande fascino. Ogni attico ha come pertinenziale un eventuale lastrico solare, collegato come dal cliente richiesto con: “montacarico, scala interna o scala esterna condominiale; in base alle richieste sul lastrico verranno posizione doccia impianti per posizionare una piccola cucina esterna, e la predisposizione di scarichi e carichi per il posizionamento di vasche Iacuzzi e/o similari; su ogni lastrico solare acquistato a parte, la Civitanova 2000 Srl offre, compreso nel capitolato, una Pergola di metri 5x4 con copertura di 8 pannelli solari per una produzione di energia corrispondente a 3.8 Kwp . e con richiesta a parte batteria di accumulo con potenza in base alla propria produzione. Gli atti relativi agli allacci GSE saranno curati dalla Civitanova 2000 Srl.
L’ultimo edificio, denominato 5/A corpo 2 è stato costruito dalla Civitanova 2000, ed è in fase di consegna, risultato, in sede di rilascio di certificato di attestazione energetica, “APE” una classe A++++.
Pertanto sulla base del costruito, anche questo edificio, verrà realizzato con le stesse tecniche e gli stessi materiali di quello precedente e sarà destinato a raggiungere anch’esso il massimo livello energetico ad oggi esistente nel mercato immobiliare.
Per essere aggiornati sui nostri progetti Vi invitiamo a contattarci al numero di telefono Questo indirizzo email è protetto dagli spambots. È necessario abilitare JavaScript per vederlo. , oppure inviare un messaggio di posta elettronica a: Questo indirizzo email è protetto dagli spambots. È necessario abilitare JavaScript per vederlo.
